Highlights of 10-16f Carolina
- Approx Int Sqft
- 740
- Estate
- Carolina
- Landscaping
- Professional
- Quarter
- Coral Bay
- Total Approx. SqFt
- 1,170
- Total Bedrooms
- 1
- Year Built
- 2006
- Area
- St John
- Island
- St John
- MLS #
- 21-121
- Status
- Closed
- Total Bathrooms
- 1
- Total SqFt
- 1,170
-
Property Description
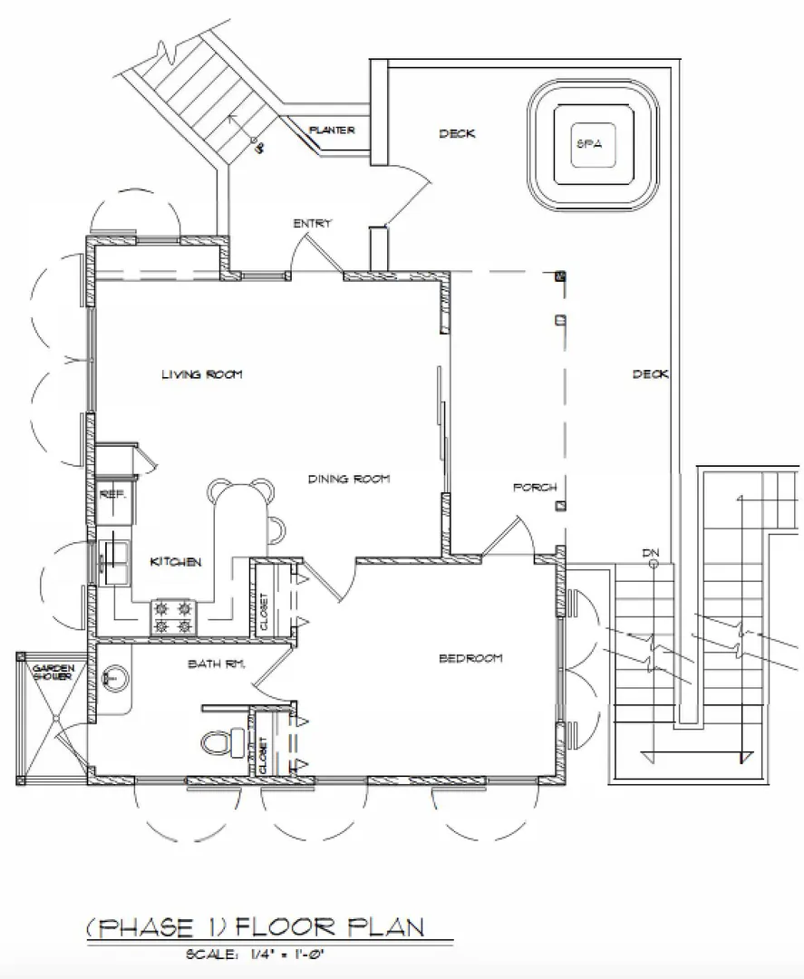
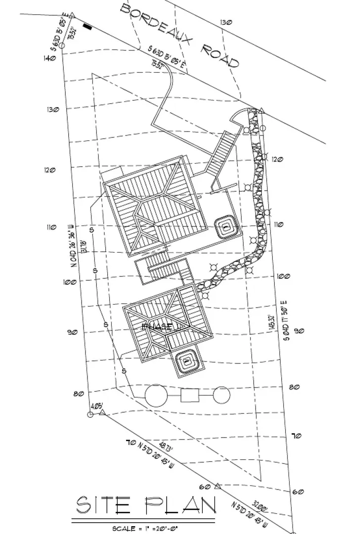
EXCELLENT TURN KEY ISLAND COTTAGE. Room to expand if desired. Excellent condition; beautifully maintained with detailed records. Easily accessed; paved road and parking. Strong history of short term rental income since 2006. Walk-able to Coral Bay waterfront shopping and dining. Privacy; tucked into the hillside overlooking Coral Bay Harbor, Caribbean and valley views. Designed by local architect Bill Willigerod, built to last by builder Joe Nogueira, and 2019/20 upgrades by Jack Caynes. Area below main house could easily be made into an artist studio or shop. Expired permitted plans for second cottage available. This is a very special island gem!
-
Features
- AC/Fans: Yes
- Cistern Capacity +/- (gal.): 10, 000
- Cistern: Fiberglass
- Roof: Galvanized
-
Additional Info
- Builder Name: Joe Nogueira
- Construction: Frame
- Easements: of record
- Grade: moderate
- Intended Use: Other
- Sewer: Septic
- Zoning: R-2Residential
- Condition: Excellent
- Deck SqFt: 430
- Foundation: masonry
- Insurance: available
- Road Assessment Year: 2020.00
- Waterfront: N
-
Amenities
- Appliances: Dryer, Refrigerator, Stove, Washer
- Hot Tub/Spa: Yes
- Furnished: Yes
- View: British Virgin Islands, Caribbean, Down Island, East/sunrise, Harbor, Mountain
-
Fees and Taxes
- Tax Year: 2020
- Taxes: 1533.64
Listing courtesy of 340 Real Estate Company LLC., (340) 643-6068.
Map
10-16f Carolina, Coral Bay St. John, US Virgin Islands 00830
Loading Map...
10-16f Carolina
