Highlights of 3-a Little Princ Hil Co
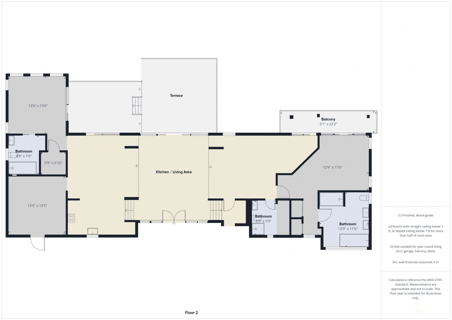
- Approx Int Sqft
- 2,800
- MLS #
- 25-787
- Status
- Active
- Total Approx. SqFt
- 2,900
- Total Bedrooms
- 3
- Year Built
- 1963
- Lot Acres
- 1.40
- Quarter
- Company
- Sub Type
- Residential - 1 Apt
- Total Bathrooms
- 4
- Total SqFt
- 2,900
-
Property Description
Welcome to your island sanctuary in Little Princesse. This beautifully renovated home offers a harmonious blend of modern comfort and Caribbean charm, nestled in a serene and picturesque community with breathtaking views. The main house features a spacious, open living area with large windows that perfectly frame the stunning views. Its open-plan design seamlessly connects indoor and outdoor spaces, creating a welcoming environment ideal for both relaxation and entertainment. On the lower level, you'll find a thoughtfully designed apartment that provides ample space and privacy, making it perfect for guests or generating income. This property is truly a hidden gem, waiting to be discovered. Property is sold ''AS IS WHERE IS''
-
Additional Info
- Restrictions: Of Record
- Zoning: R-1
-
Fees and Taxes
- Tax Year: 2025
- Taxes: 794.34
Listing courtesy of Sea Glass Properties St Croix.
Map
3-a Little Princ Hil Co, Company St. Croix, 00820
Loading Map...
3-a Little Princ Hil Co
