Artboard 1? alert-icon? Artboard 1? ? ? delete-icon? edit-icon? email-icon hide-hover-icon? Artboard 1? login-icon-white Artboard 1? next-icon-left next-icon-right-left next-icon-left-ochre next-icon next-icon-right-grey next-icon-right-ochre plus-with-circle-iconP search-fw-icon? search-icon-ochre search-icon-white

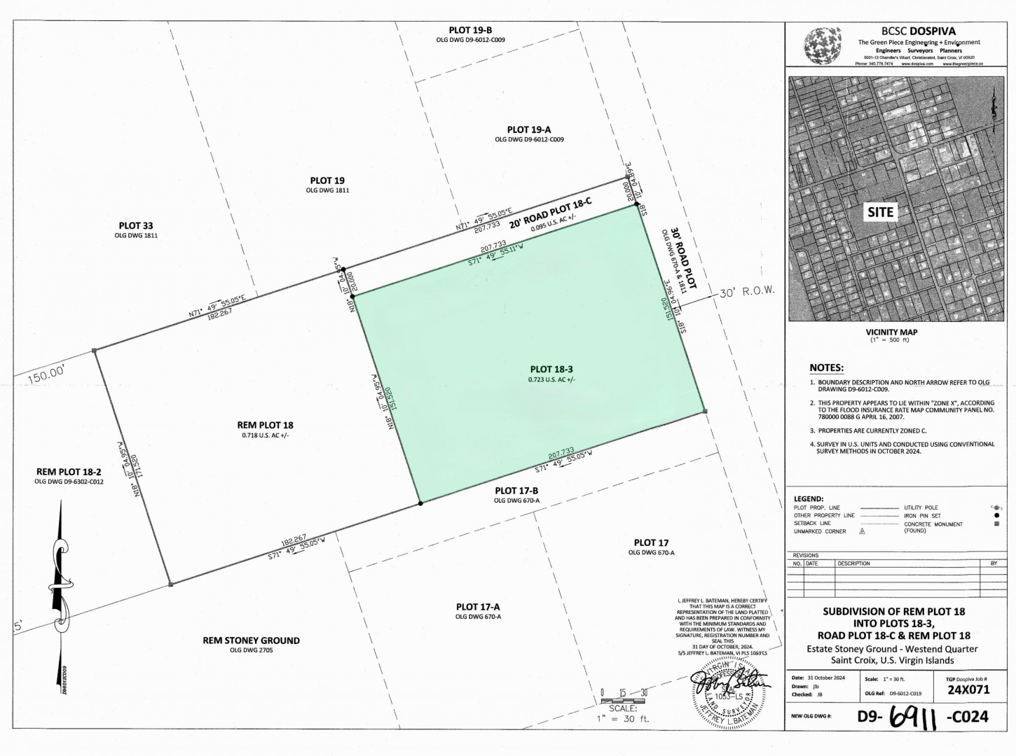
18-3 Stoney Ground We

West End, St. Croix, 00840
$225,000
0.72 Acre Lot

Highlights of 18-3 Stoney Ground We

Lot Acres
0.72
Quarter
West End
Sub Type
Unimproved (Commercial/Industrial/Business)
MLS #
25-1904
Status
Closed
  • Property Description
    Looking for a commercially zoned unimproved flat lot? This is 0.72 acre square cleared lot is right on Emancipation Drive, just south of Queen Mary Highway. There are so many possibilities to build a business on this high traffic site! If you've been wanting a great commercial lot, you have to see this one!
  • Additional Info
    • Intended Use: Other
    • Zoning: C
    • Restrictions: Of Record
  • Fees and Taxes
    • Tax Year: 2024
    • Taxes: 186.50

Listing courtesy of Coldwell Banker St.Croix Realty - GB, (340) 778-7000.

  • This field is for validation purposes and should be left unchanged.

About this area
West End St. Croix Real Estate Guide

The West End of St Croix is known for its spectacular beaches. St. Croix's West End coastline attracts tourists and locals with snorkeling, boating, and other water sports. These shores are also home to Sandy Point National Wildlife Refuge, renowned for its ecological preservation, and its leatherback sea turtles. St. Croix's West End is also home to...

Price Range: $57,000 - $1,950,000

Map

18-3 Stoney Ground We, West End St. Croix, 00840

Loading Map...

Picture of an interior
Picture of an interior
Picture of an interior
Picture of an interior
Picture of an interior
Picture of an interior
Picture of an interior
Picture of an interior
Picture of an interior
Picture of an interior
  • This field is for validation purposes and should be left unchanged.

By joining you agree to our Terms of Use and Privacy Policy


International Partners