Artboard 1? alert-icon? Artboard 1? ? ? delete-icon? edit-icon? email-icon hide-hover-icon? Artboard 1? login-icon-white Artboard 1? next-icon-left next-icon-right-left next-icon-left-ochre next-icon next-icon-right-grey next-icon-right-ochre plus-with-circle-iconP search-fw-icon? search-icon-ochre search-icon-white

30 & 31/1 Queen Cross Ch - Dronning Crossing

Christiansted, St. Croix, 00820
$129,000
1 Bed
1 Bath
376 Sqft

Highlights of 30 & 31/1 Queen Cross Ch

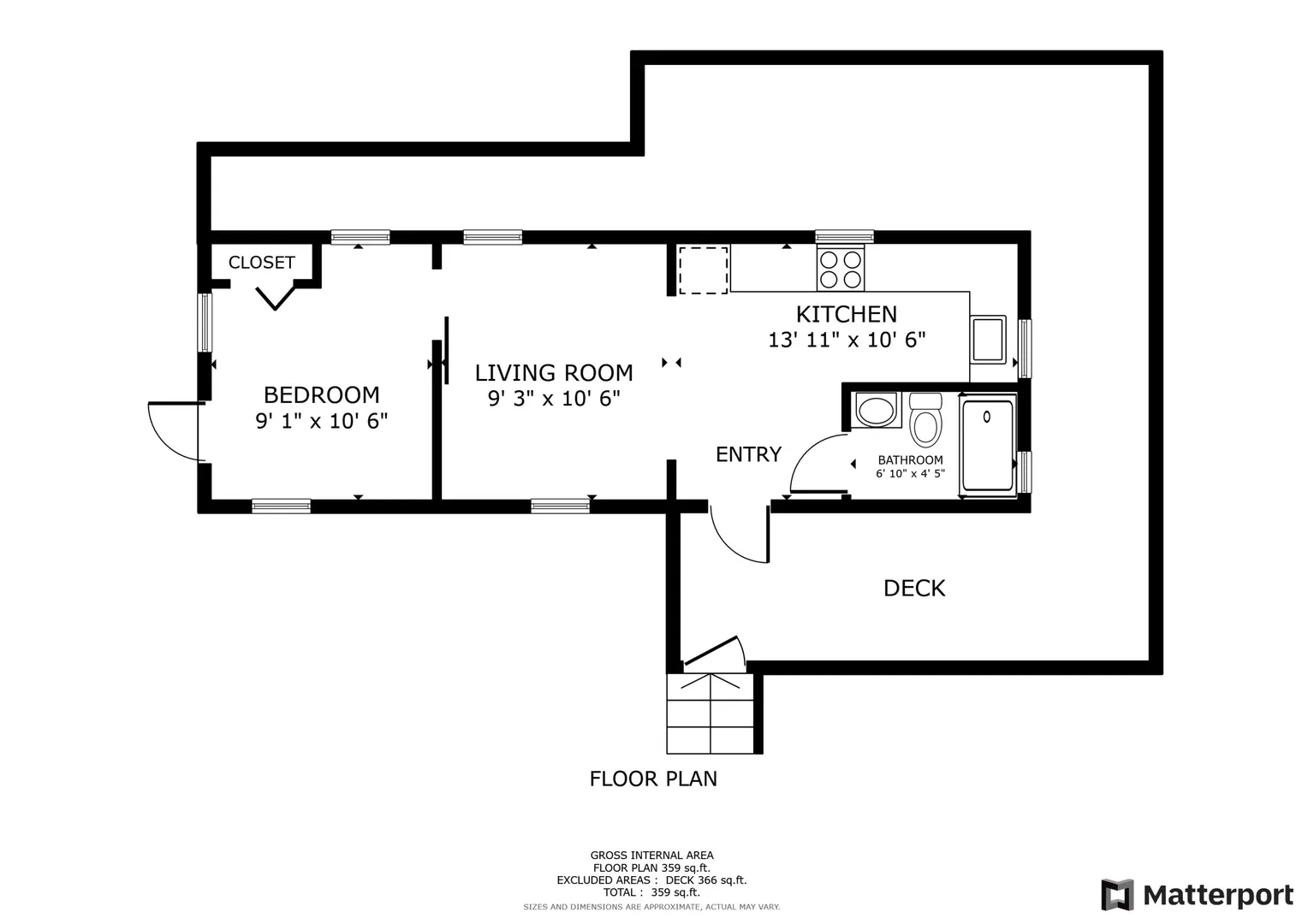
Approx Int Sqft
376
Quarter
Christiansted
Sub Type
Condominium
Total Bathrooms
1
Total SqFt
710
MLS #
24-1443
Status
Pending
Total Approx. SqFt
710
Total Bedrooms
1
Year Built
1947
  • Property Description
    Dronning Crossing - Discover the newest condominium complex in the heart of downtown Christiansted. This charming eight unit complex spans five buildings across three R-4 zoned lots. The Dragon Fruit unit is a standalone teal cottage situated at the back of the property with a new extended concrete wraparound deck that was renovated in 2025 and quartz kitchen countertops were added in 2023. The unit also features a new mini-split ac, pocket door to separate the bedroom and living room, two entrances and a laundry shed conveniently located on the side deck. Owning your own piece of paradise has never been so affordable! Seller is a VI licensed real estate broker.
  • Additional Info
    • Condo Name: Dronning Crossing
  • Amenities
    • Furnished: Appliances Only
  • Fees and Taxes
    • Condo Fee: $252.20
    • Taxes: 291.35
    • Tax Year: 2024

Listing courtesy of US Virgin Islands Sotheby's International, St. Croix, (340) 713-0204.

  • This field is for validation purposes and should be left unchanged.

About this area
Christiansted St. Croix Real Estate Guide

Christiansted, St Croix is a historic, energetic town with many real estate options, such as homes, condos, and rental properties available, as well as commercial properties for sale that features historic Danish architecture. It’s home to not only the government but also many of St. Croix’s historic landmarks. As a future Christiansted resident,...

Price Range: $460,000 - $1,750,000

Map

30 & 31/1 Queen Cross Ch, Christiansted St. Croix, 00820

Loading Map...

Picture of an interior
Picture of an interior
Picture of an interior
Picture of an interior
Picture of an interior
Picture of an interior
Picture of an interior
Picture of an interior
Picture of an interior
Picture of an interior
  • This field is for validation purposes and should be left unchanged.

By joining you agree to our Terms of Use and Privacy Policy


International Partners